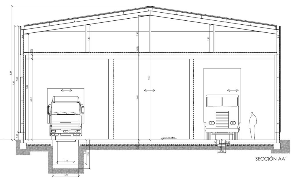
Nave de nueva planta en Venta de Baños (Palencia)

Pequeña nave industrial en el polígono de Venta de baños, donde lo importante es la racionalización de la edificación, ocupando el menor espacio posible, para aprovechar al máximo el espacio exterior sin construir, que es lo primordial en este proyecto.